search

750 करोड़ का मेगा प्रोजेक्ट: BDA की नई टाउनशिप में मिलेंगे पेट्रोल पंप, बैंक और हॉस्टल जैसी सुविधाएं, मार्च से एक्शन

LHC0088 3 hour(s) ago views 641
  

बीडीए टाउनश‍िप



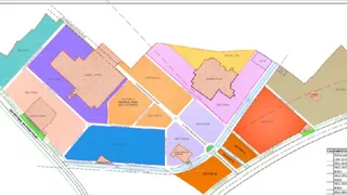
जागरण संवाददाता, बरेली। बरेली विकास प्राधिकरण (बीडीए) के अधिकारियों ने पीलीभीत रोड पर प्रस्तावित एमएसएमई टाउनशिप के विकास की तैयारी तेज कर दी है। अधिकारियों के अनुसार मार्च से भूमि खरीद शुरू कर दी जाएगी। इसके लिए गुरुवार को रहपुरा जागीर की छूटी गाटा संख्या को भी सम्मिलित करते हुए किसानों से सहमति के आधार पर खरीदने से पहले आपत्तियां मांगी हैं।

आपत्तिकर्ता को इसके लिए 10 दिन का समय दिया है। 250 हेक्टेयर में विकसित होने वाली योजना के लिए 800 से अधिक किसानों से भूमि खरीदी जानी है। पहले चरण में 125 हेक्टेयर में विकास का खाका खींचा गया है। शासन ने सभी जिलों में लघु सूक्ष्म एवं मध्यम उद्योग को बढ़ावा देने के लिए इंडस्ट्रियल टाउनशिप के विकास की स्वीकृति दी है।

इसके लिए रहपुरा जागीर, रसूला चौधरी व भिटौरा नौगवां उर्फ फतेहगंज पश्चिमी गांव के किसानों से भूमि खरीदी जानी है। जिलाधिकारी की अध्यक्षता में क्रय निर्धारण समिति का गठन पूर्व में हो चुका है। अब इन गांव के छूटे हुए नंबरों को भी शामिल कर आपत्तियां मांगने का काम तेज हो गया है।

बीडीए उपाध्यक्ष डा. मनिकंडन ए. के अनुसार औद्योगिक टाउनशिप में एसटीपी, ई-चार्जिंग स्टेशन, कामन पार्किंग एरिया, भूमिगत विद्युतीकरण, पेट्रोल पंप, सीयूजीएल गैस लाइन नेटवर्क, कैफेटेरिया, बैंक-पोस्ट आफिस, फायर स्टेशन एंड हायड्रेंट नेटवर्क, मेडिकल सुविधाएं, कामन फैसिलिटी सेंटर, सालिड वेस्ट मैनेजमेंट प्लांट, डोरमेट्री-हास्टल फैसिलिटी समेत अन्य सुविधाएं विकसित की जाएंगी।

योजना में 750 वर्गमीटर, एक हजार वर्गमीटर, दो हजार वर्गमीटर, पांच हजार और 10 हजार वर्गमीटर के भूखंड सृजित किए जाएंगे। औद्योगिक टाउनशिप के विकास से जिले में उद्यम को बढ़ावा मिलने के साथ बड़ी संख्या में रोजगार के अवसर भी उपलब्ध होंगे। इसके लिए के 750 करोड़ से अधिक धनराशि खर्च की जाएगी।

उल्लेखनीय है कि जिले में परसाखेड़ा, फरीदपुर, रजऊ परसपुर व आंवला क्षेत्र में इंडस्ट्रियल टाउनशिप विकसित की गई है, मगर बुनियादी सुविधाओं के नहीं होने से कई बार उद्यमियों को परेशानी का सामना करना पड़ता है।

अब बीडीए की रहपुरा जागीर समेत तीन गांव में प्रस्तावित नई टाउनशिप में सभी आधुनिक सुविधाओं के उपलब्ध कराने का दावा किया जा रहा है, जिसमें कामगारों के लिए डोरमेट्री, हास्टल, पेट्रोल पंप, होटल-रेस्टोरेंट, पार्किंग, बैकयार्ड समेत कई अन्य सुविधाओं का विकास किया जाएगा। इससे रोजगार सृजन भी होगा।

  

यह भी पढ़ें- 42 हजार/मीटर में मिल रही जमीन! MDA की नई टाउनशिप में बुकिंग शुरू, जानें आवेदन का स्टेप-बाय-स्टेप तरीका

  

यह भी पढ़ें- महंगे प्लॉट से मिलेगी राहत! मुरादाबाद की नई सह्याद्रि और शिवालिक योजना में आम आदमी का अपने घर का सपना होगा सच
like (0)
LHC0088Forum Veteran

Post a reply

loginto write comments
LHC0088

He hasn't introduced himself yet.

510K

Threads

0

Posts

1610K

Credits

Forum Veteran

Credits
163059